room layouts masthead image

Perfect for early

site planning discussions

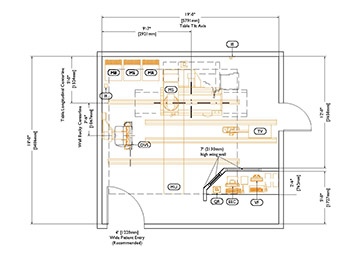
Philips preferred and interactive room layouts are designed to help architects, engineers and contractors as well as facilities personnel understand the basic implications of installing a Philips imaging system.

Here you'll have access to downloadable room layouts in pdf and, where available, in DWG and IRL PDF format.

Please note that, while extremely useful, the downloadable files in this section are not site specific or suitable for bidding purposes.

*

聯絡資訊

* 此欄位為必填

*
*
*
*
*
*
*
*
*

通過指定您的聯繫原因,我們將能夠為您提供更好的服務。

We work with partners and distributors who may contact you about this Philips product on our behalf.

*
*

Final CEE consent

Room layouts

Preferred room layouts

Preferred room layouts


Our drawing packages will provide you with a look at:

  • preferred room size
  • equipment placement
  • general sizes, weights and heat load


Downloadable files are available for you in PDF format or DWG(CAD) format.

Interactive room layouts


In certain cases you may not be familiar with the imaging equipment your institution plans to install. Our 3D interactive room layouts (IRL) let you see the equipment as it looks in a standard room layout.
Each IRL includes:

  • interactive room views from multiple perspectives
  • embedded video ‘walk-through’
  • general system requirements


Downloadable files for many Philips imaging systems are available to you in IRL format.

Note: Due to their size, they maytake a couple of minutes to download.

Interactive room layouts

Site planning solutions

Philips site planning community

Geared toward architects, engineers and contractors (AEC), the Site Planning Community is a valuable resource for in-depth site planning information

 

Read now

You are about to visit a Philips global content page

Continue

You are about to visit a Philips global content page

Continue

使用最新版 Microsoft Edge、Google Chrome 或 Firefox 瀏覽本網站效果最佳。